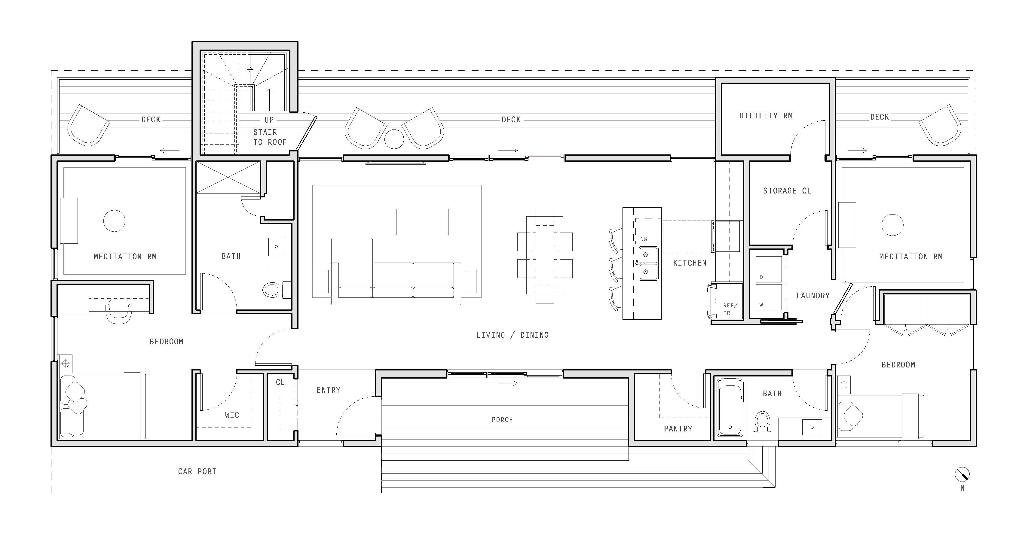
A Home for Contemplatives
Location: Crestone, Colorado
Type: Residential
Size: 1500 Sf
Status: Completed 2022
Collaborators: Carrie Caverly Design Studio
A home for two contemplatives on the western slope of the Sangre de Cristo mountain range. Climate, views towards the valley on the south side and mountains on the north, and fung shui principles guided the orientation and design. Openings correspond to internal circulation, forming view corridors & cross ventilation. South eastern directionality was favored to create the right energy. As one enters the site, a parking area creates a large frame directing views this way. The south facing terrace is shaded by a roof overhang, providing shade & passive cooling in the hot summer months.






























